Schloss Lanke

interior

Salon, Wellnessbereich, Eventbereich & Bibliothek – Bachelorthesis

Gruppenarbeit mit Katharina Bahne

Das Schloss soll saniert und mit privaten Appartements sowie Gemeinschaftsflächen versehen werden, die unter anderem einen Wellnessbereich im Keller und eine Bibliothek im Dachgeschoss beinhalten.

Eingang
Im Eingangsbereich wurde die Tradition einer Ahnengalerie neu interpretiert. Verschiedene Arten von weißen Bilderrahmen stehen im Kontrast zu anthrazitgrauen Wänden, Boden und Decke. Vereinzelte Spiegelflächen reflektieren die Gegenwart durch das Spiegelbild der vorbeigehenden Personen.

Salon
Im Salon wurde ein, an den Dekonstruktivismus angelehntes, Konzept umgesetzt. Durch mehrfach gefaltete und aneinandergesetzte Dreiecksstrukturen wurde die Enthüllung des Ungewohnten betont, welches sich hinter dem Traditionellen verbirgt. Die alten prunkvollen Decken- und Wandgestaltungen wurden abgelöst von einer fragmentiert und wieder neu zusammengesetzt anmutenden ‚Verkleidung‘. Von weitem betrachtet wirkt die monolitische Konstruktion skulptural, fast fliessend. Verstärkt wird die felsenartige Wirkung durch die Materialwahl. Filz verleiht zusammen mit dem roten Putz der Wände und dem Kamin eine Atmosphäre der Sicherheit und Wärme. Der Tischentwurf, bestehend aus 4 Elementen, ist ebenfalls der abstrakten, zersplitterten Formensprache angepasst.

Wellness
Der Wellnessbereich bekommt durch seine anthrazite Wandgestaltung und die Licht- und Farbakzente Kühle, Frische und Modernität. Der große Ruheraum greift in seiner formalen Gestaltung die Ausrichtung der quadratischen Nischen in den Türmchen auf und führt diese weiter. Durch abgehängte Lichtdecken über Nischen und Whirlpool können sanfte Lichtstimmungen erzeugt werden.An ihn grenzt fugenlos der Swimmingpool an, über welchem die ‚Cubes‘ ein besonderes Element formen und den Bezug nach Außen herstellen. Durch drei Deckendurchbrüche und darauf aufgesetzte Kuben wird den Bewohnern tagsüber der Blick in den Himmel ermöglicht, Sonnenlicht fällt ein und ein interessantes Lichtspiel bildet sich auf der Wasseroberfläche ab. Nachts lässt die Beleuchtung die Cubes vor dem Schloss zur inszenierten Lichtskulptur werden.

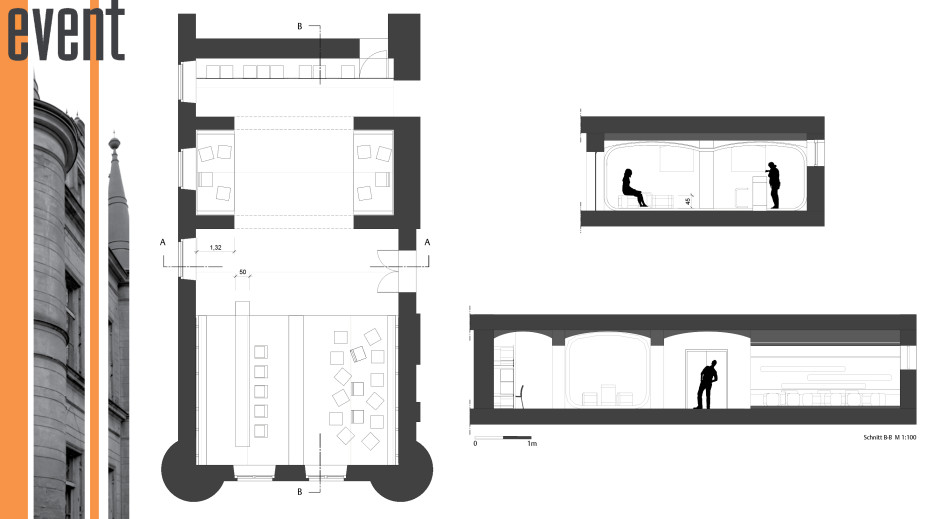
Event
Ein modulares System bestehend aus einem Regalsystem zur Verstauung von Sitzkuben ermöglicht unterschiedlichste Nutzungen. Man kann hier eine kleine intime Runde zu 10, aber auch ein großes Fest zu 60 veranstalten.Das Thema Gewölbe/ Kreisrundung spiegelt sich in den Einbauten wider und erzeugt eine klare fließende Formensprache in der Möblierung. Durch die rein weiße Farbwahl werden die „Raum in Raum“-Einbauten betont und vom Bestand, der mit grauem Putz belegt ist, abgehoben. Sitzkuben sorgen für Farbakzente.

Bibliothek
Bei der Gestaltung des Dachgeschosses war das Thema „Bücher bis unter die Decke“ ausgehendes Gestaltungselement. Betritt man die Bibliothek steuert man geradewegs auf ein deckenhohes Büchreregal zu welches das Zentrum bildet und über Galerien erreichbar ist. Schwarze, glänzende Oberflächen spiegeln die Bücher der Regale wider und suggerieren dadurch eine gewisse „Endlosigkeit“. Das Regal wirkt, als würde es ohne Unterbrechung nach oben hin weiterlaufen. Sitz- und Lesebereiche  auf und unter den Galerien bieten Raum und Komfort zum Lesen und Stöbern. Zusätzlich gibt es zwei grüne Polsterelemente, die in beliebiger Sitz-/Liegeposition nutzbar sind.